Pestalozzischule

Pfaffenbergstraße 108
1955-1957
Architekt: Hans Tinti (Stadtbauamt Kaiserslautern)

 

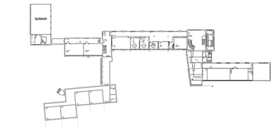
Grundriss des Erdgeschosses (Stadtbauamt Kaiserslautern)

Grundriss des Erdgeschosses (Stadtbauamt Kaiserslautern)

 

Ansicht. Fotos: Sabrina Dohle, Lehrgebiet gta, TU Kaiserslautern (2006)

Ansicht
Foto: Sabrina Dohle, Lehrgebiet gta, TU Kaiserslautern (2006)

 

Ansicht. Fotos: Sabrina Dohle, Lehrgebiet gta, TU Kaiserslautern (2006)

Ansicht des Haupteingangs
Foto: Sabrina Dohle, Lehrgebiet gta, TU Kaiserslautern (2006)

Die Ende des 20. Jahrhunderts unter Denkmalschutz gestellte Schule befindet sich im südlichen Teil Kaiserslauterns, dem Stadtteil Lämmchesberg. Die Entstehung der Pestalozzischule lässt sich auf die Schulraumnot nach dem Zweiten Weltkrieg zurückführen. Sie wurde für die damals rund 400 volksschulpflichtigen Kinder der Wohnsiedlungen Lämmchesberg, Pfaffenberg und Buchenloch erbaut. Für das Baugelände wurde eine etwa zwei Hektar große Reichswaldfläche gerodet, so dass die Schule heute in eine Grünzone gebettet ist.

Die Pestalozzischule ist eine mehrflüglige Anlage, die sich zur Straße hin öffnet und um zwei Innenhöfe gruppiert ist. Sie besteht aus vier langgestreckten, ein- bis zweigeschossigen Gebäuden unter flachen, asymmetrischen Satteldächern beziehungsweise Pultdächern sowie einer Sporthalle. Die Gebäude sind untereinander durch überdachte Gänge, die als Pausenhallen genutzt werden können, und durch Treppenhallen verbunden. Die Gliederung in vier Baukörper erklärt sich durch die Aufteilung von Ober-, Mittel- und Unterstufe der damaligen Volksschule auf einzelne Gebäude. Im vierten Flügel sind neben der Eingangshalle die allgemeinen Säle untergebracht. Durch die Teilung in zwei Schulhöfe erhielten die Schüler der Ober- und Mittelstufe einen eigenen Pausenhof.

Heute ist die Pestalozzischule eine Grundschule, und in dem damaligen Unterstufengebäude befinden sich die ersten Klassen. Auffallend sind die starke horizontale Gliederung sowie die unterschiedlichen Fensterformate des Schulgebäudes. Jedes Fensterformat steht für eine bestimmte Funktion, also Klassensaal, Flur oder Nebenräume. Alle Klassen sind mit ihren großen Fenstern nach Osten hin ausgerichtet. So wirkt die Rückseite mit deutlich mehr Wandanteil viel geschlossener. Der Eingang liegt dezentral zwischen dem Oberstufengebäude und dem Trakt mit den allgemeinen Sälen und fällt durch sein auskragendes Dach besonders ins Auge. Da die Schule an einen Hang gebaut wurde, liegt auf der Westseite das Kellergeschoss, in dem sich unter anderem die Umkleidekabinen und die Küche befinden, frei. So konnte hier ein separater Eingang zur ebenfalls im Kellergeschoss liegenden Hausmeisterwohnung errichtet werden.

Hinter den Klassenräumen im Westen befinden sich die Flure, deren Decken mit Dach herabgesetzt wurden, um die Klassen auch von Westen her belichten und belüften zu können. Dies war nötig, da die Klassenräume größer als normal waren, weil die Pestalozzischule elf Jahre lang auch als Übungsschule für die Pädagogische Akademie auf der gegenüberliegenden Straßenseite diente und so neben den Schülern auch die Studenten in den Klassen Platz finden mussten.

Die Pestalozzischule ist in ihrer Gestalt ein typischer Schulbau der fünfziger Jahre, was sich auch im Vergleich zu anderen Schulen, wie der Stresemannschule in Kaiserslautern, zeigt. Zeichen hierfür sind die Horizontalität, die dezentrale Ausrichtung und - auch mit fernen Bezügen auf Hans Scharouns Entwurf für eine Volksschule in Darmstadt aus dem Jahr 1951 - die Pavillonbauweise.

Sandra Horn

 

Literatur

Johannes Straub: Lauter Lautrer Schulen. Kaiserslautern 2006

Schule auf dem Lämmchesberg. In: Die Rheinpfalz. 15. 12. 1954

   
zurück